
Типология
Частная архитектура
Год
2026
Статус
Эскизный проект
Стадия
Концепция
Площадь
179 м2
Вид работ
Архитектура, благоустройство, интерьеры, инженерия
Расположение
Ереван, Армения
С дороги дом открывается не сразу. Сначала — зелень, тень, воздух. И только потом появляется само здание — спокойное, собранное, без лишнего жеста. Оно не спорит с окружением. Оно в нём живёт.
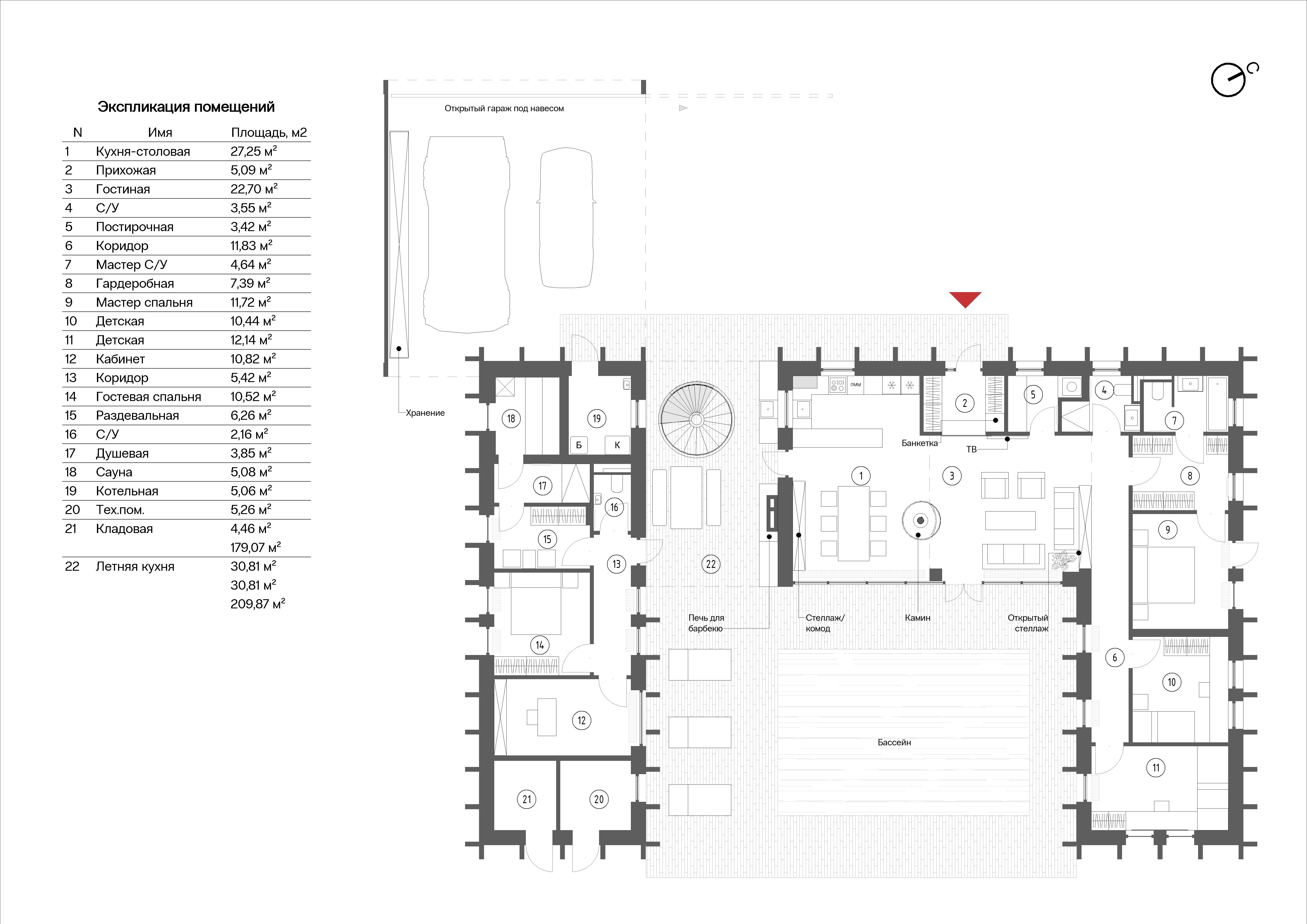
Планировка здесь выстроена из привычных сценариев семьи. С улицы — в полузакрытую входную зону. Есть место оставить обувь, коляску, садовый инвентарь. Всё, что не должно попадать в дом, остаётся снаружи, но под рукой.

Вид со стороны дороги и главного входа
Дальше — короткий переход внутрь. Без длинных коридоров. Пространство сразу раскрывается: через прихожую на кухню и в гостиную. Всё рядом, но не в одной точке. Дом не делит жизнь на комнаты — он собирает её в удобную последовательность.

Интерьер кухни-гостиной
Просторная кухня-гостиная — сердце дома. Здесь удобно собираться всей семьёй, проводить вечера, принимать гостей. Дровяной камин деликатно разделяет кухню-столовую и зону отдыха, сохраняя общее пространство единым. Из гостиной виден внутренний двор с бассейном и садом — визуально дом продолжается за пределами стен.
Через стеклянные двери можно пройти в летнюю кухню. Это пространство используется для приготовления еды на открытом воздухе, встреч с друзьями и семейных ужинов. Летняя кухня соединяет разные части дома: с одной стороны находится приватная зона, с другой — гостевая и техническая. Из кухни в доме предусмотрено окно-передача, через которое удобно подавать еду и напитки на террасу, не обходя дом.

План первого этажа
Правое крыло занимает зона постоянного проживания. Здесь расположены мастер-спальня с собственной ванной и гардеробной, две детские комнаты, гостевой санузел и постирочная. Планировка и ориентация помещений помогают сохранять комфортную температуру и обеспечивают спокойную атмосферу для отдыха.
Рабочий кабинет вынесен в отдельное крыло дома. Это место для сосредоточенной работы и онлайн-встреч, где можно быть включённым в дела, при этом наблюдая за тем, что происходит у бассейна и в саду.
Для гостей предусмотрена отдельная спальня — уединённая и тихая. Она устроена так, чтобы человек чувствовал себя желанным гостем дома, пусть даже на короткое время.
Дом связан с участком: из разных помещений есть выход к бассейну, который становится центром двора. Рядом расположен газон для отдыха и игр, предусмотрено место для детской площадки. Она находится в зоне видимости из кухни и гостиной, что удобно для повседневной жизни.

Общий вид на участок
Со всех сторон дом окружён садом, из окон открывается вид на зелёный участок. Здесь растут плодовые деревья, есть места для отдыха, уединения, прогулок и тихих вечеров на свежем воздухе.
Дом одноэтажный — без лестниц и перепадов уровней, в нём удобно жить людям любого возраста. Для особых случаев предусмотрена эксплуатируемая кровля с открытой террасой. Сюда ведёт лёгкая металлическая лестница с летней кухни. На кровле можно устраивать праздники, семейные ужины или просто встречать закаты, глядя на сад и небо.
Фасады выполнены в современной лаконичной стилистике. Вертикальные ламели не только формируют облик дома, но и защищают его от избыточного солнца, создавая мягкую тень в интерьере и меняющийся рисунок света в течение дня.

Деталь фасада
Инженерные решения продуманы с точки зрения удобства эксплуатации. В доме есть отдельная котельная с газовым котлом и резервным бойлером. В зонах с водой предусмотрены тёплые полы, отопление комбинированное — с радиаторами и встроенными в пол конвекторами у панорамных окон. Все помещения с инженерными коммуникациями сгруппированы, что упрощает обслуживание и снижает затраты. Система кондиционирования поддерживает комфортную температуру в жаркие дни.

Генплан участка
На участке предусмотрены скважина и септик. Технические зоны, включая ввод газа и хозяйственную площадку, расположены ближе к дороге, чтобы основная часть участка оставалась свободной.
Несмотря на сложную форму, дом остаётся рациональным в строительстве и эксплуатации. Планировка выстроена вокруг повседневных сценариев жизни как внутри дома, так и снаружи.
Эта вилла не про эффект. Она про желание возвращаться. Про утренний свет на полу. Про вечерний воздух и вид на горы. Про вещи, которые всегда на своих местах. И про ощущение, что дом — это иногда шумный, но такой необходимый ритм жизни.



